Appartement Type 3 – Près d’Arènes
Galerie photos
Contact

METROPOL'Immo
Agence immobilière à Bordeaux
12 rue du Haut Pontac
33140 Villenave d’Ornon
Marine Domy :
06 51 44 47 42
Norman Renard :
06 13 23 54 81
Description
Montpellier – Près d’Arènes (Montpellier Sud), Quartier en plein développement :
– Accès direct Autoroute A9 / A709
– à 10 minutes des plages (PALAVAS LES FLOTS / VILLENEUVE LES MAGUELONES),
– Commerces à 100 m dont INTERMARCHE
– Transports très proche (Bus au pied de la résidence / TRAM à 1km)
– Infrastructures (écoles, médecins…)
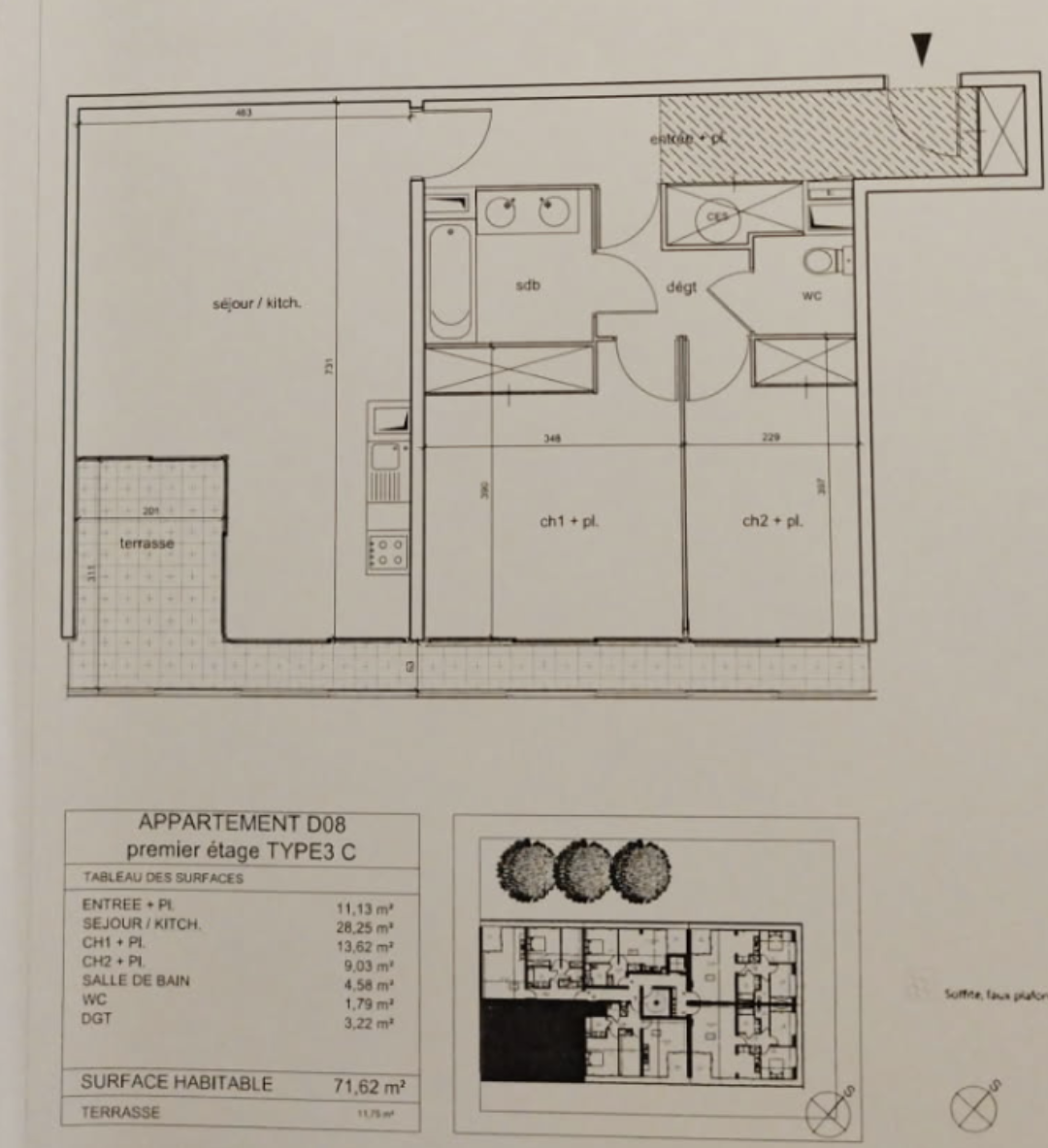
Appartement de 72 m² au 1er étage d’une résidence récente de 2010/2012.
– Séjour lumineux avec sa cuisine ouverte et équipée
– 2 chambres avec placard aménagé chacune
– 1 salle de bain avec meuble double vasque
– 1 WC séparé
– 1 terrasse
Equipements :
– double placards dans le couloir d’entrée
– climatisation
– store (cuisine)
– interphone / digicode
+ GARAGE BOX fermé (avec antivol supplémentaire)
LES + :
Résidence sécurisée avec Gardien
Accès PMR
Cour intérieure sécurisée dans la résidence
Charges annuelles FAIBLES (eau incluse) = 1350€ / an
Taxe Foncière : 1615€ (2024)
Prix : 185 000EUR NET vendeur + 6%TTC Honoraires Agence


